物件所在地 |
兵庫県加古川市野口町野口346-2  |
交通機関 |
東海道・山陽本線 東加古川駅 徒歩14分 山陽電鉄本線 別府(兵庫)駅 徒歩39分 東海道・山陽本線 加古川駅 徒歩37分 |
築年数 |
1963年12月 |
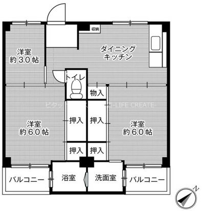
間取り詳細 |
DK(6畳) 洋室(6畳) 洋室(6畳) 洋室(3畳) |
建物構造 |
鉄筋コンクリート |
所在階/階数 |
1/4 |
部屋向き |
南 |
入居時期 |
即時 |
入居条件 |
ペット(相談),二人(可),高齢者(相談),ルームシェア(相談) |
保証会社 |
必須 要確認 |
周辺施設 |
スーパー:イオン 加古川店 397m コンビニ:ローソン 加古川野口町北野店 445m 総合病院:東加古川病院 1080m
|
設備 |
ガスキッチン,キッチンに窓,バス・トイレ別,バス有,脱衣所,トイレ有,温水洗浄便座,洗面台,洗面所独立,洗面所にドア,エアコン,インターネット専用線配線済み,給湯,冷房,暖房,室内洗濯機置場,押入,収納有,ガス(プロパン),下水(公共下水),水道(公営),電気 |
部屋外設備 |
バルコニー |
駐車場 |
駐車場:有(敷地内) 4400円/月~ |
特徴 |
2F以上,保証人(要),カード決済可(入居時費用) |
備考 |
|