JR山陽本線・山陽電鉄本線の沿線を中心に加古川市・姫路・高砂・加古郡・小野・加東・明石周辺の優良賃貸物件をご案内!

ピタットハウス加古川店 [賃貸版]

当店が選ばれる理由は、お部屋探しのスペシャリストが揃っているから!

宅地建物取引士(国家資格)
名
賃貸不動産経営管理士
名
少額短期保険募集人
名

テラスハウス

樫木ハイツ2

  • 賃料
    4.5万円
  • 間取り
    2LDK
    面積(専有・建物)60㎡

敷金/礼金:-/-
管理費等:0円
保証金/敷引/償却金:-/-/-
築年月:1980年1月

駐車場1台込!ペット可のメゾネットで戸建感覚で生活出来ます!!
  • 兵庫県加古川市米田町平津124-1
  • 東海道・山陽本線 宝殿駅 徒歩14分
    東海道・山陽本線 加古川駅 徒歩28分
    山陽電鉄本線 尾上の松駅 徒歩61分
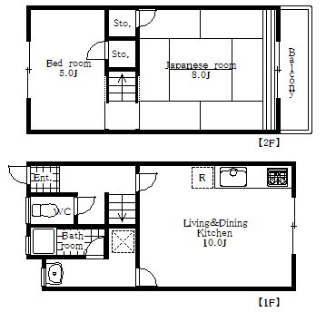
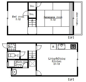
樫木ハイツ2 間取り図
樫木ハイツ2 外観写真
樫木ハイツ2 周辺画像1
樫木ハイツ2 周辺画像5

この物件を問い合わせる

この賃貸物件のお問い合わせ番号
0000088170

この賃貸物件の取り扱い店舗

株式会社ライフクリエイト ピタットハウス 加古川店
TEL : 079-425-0980
営業時間 10:00 ~ 18:30(水定休日)

この賃貸物件の詳細情報

物件所在地 兵庫県加古川市米田町平津124-1 周辺地図
交通機関 東海道・山陽本線 宝殿駅 徒歩14分
東海道・山陽本線 加古川駅 徒歩28分
山陽電鉄本線 尾上の松駅 徒歩61分
築年数 1980年1月
間取り詳細 和室(8畳) 洋室(5畳) LDK(10畳) 建物構造 鉄骨
所在階/階数 1-2/2 部屋向き
入居時期 即時  入居条件 ペット(可)
保証会社 必須 (日本セーフティー) 初回50%(最低保証料20000円) 引落手数料550円 更新料800円/月
周辺施設 コンビニ:ローソン 高砂米田店 457m
コンビニ:ファミリーマート 米田町店 591m
ドラッグストア:カスガ薬品 694m
ドラッグストア:ライフォート 米田北薬局 940m
コンビニ:ファミリーマート 米田町船頭店 872m
ドラッグストア:スギドラッグ 加古川店 917m
スーパー:ザ・ダイソー DAISO イオンタウン加古川店 918m
設備 システムキッチン,3口以上コンロ,グリル,ガスキッチン,バス・トイレ別,バス有,シャワー,トイレ有,洗面台,洗面所独立,洗面化粧台,給湯,フローリング,一部フローリング,室内洗濯機置場,収納有,ガス(プロパン),下水(公共下水),水道(公営),電気
部屋外設備 バルコニー
駐車場 駐車場:有(敷地内) 無料 駐輪場:有
特徴 メゾネット,保証人(不要),カード決済可(入居時費用)
備考
情報更新日
:2026年4月20日
次回情報更新予定日
:2026年5月20日
物件管理コード
:1107956072860000106869

この賃貸物件の取り扱い店舗

株式会社ライフクリエイト ピタットハウス 加古川店
兵庫県加古川市野口町良野1763
TEL : 079-425-0980
営業時間 10:00 ~ 19:00(水定休日)

この物件を問い合わせる

この賃貸物件のお問い合わせ番号
0000088170
  • ※代表的なお部屋の写真と物件情報になります。
    タイプによっては一部仕様・眺望等が異なる場合があります。
  • ※お部屋により現況と異なる場合は現況を優先いたします。