| 物件所在地 |
兵庫県加古川市平岡町二俣642-1  |
| 交通機関 |
東海道・山陽本線 東加古川駅 徒歩14分 山陽電鉄本線 別府(兵庫)駅 徒歩18分 山陽電鉄本線 播磨町駅 徒歩36分 |
| 築年数 |
1983年2月 |
| 間取り詳細 |
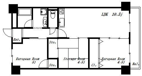
洋室(4.5畳) 洋室(5畳) 納戸(4.5畳) LDK(10.5畳) |
建物構造 |
鉄筋コンクリート |
| 所在階/階数 |
2/7 |
部屋向き |
東 |
| 入居時期 |
期日指定 2026年2月下旬 |
入居条件 |
二人(可) |
| 保証会社 |
必須 (日本セーフティー) 初回:月額総賃料の50% 更新料:10,000円/年 引落手数料:330円/月 |
| 周辺施設 |
スーパー:業務スーパー 東加古川店 150m スーパー:Maxvalu Express(マックスバリュエクスプレス) 平岡店 305m コンビニ:セブンイレブン 加古川平岡町店 200m コンビニ:セブンイレブン 加古川一色店 706m 総合病院:順心病院 1147m 小学校:加古川市立平岡南小学校 728m 中学校:加古川市立平岡南中学校 661m 高校・高専:兵庫県立農業高校 2234m
|
| 設備 |
エレベーター,宅配BOX,ガスコンロ設置済,ガスキッチン,バス・トイレ別,バス有,シャワー,トイレ有,洗面台,洗面所独立,洗面化粧台,インターネット専用線配線済み,TVインターホン,給湯,フローリング,室内洗濯機置場,押入,収納有,ガス(都市ガス),下水(公共下水),水道(公営),電気 |
| 部屋外設備 |
バルコニー |
| 駐車場 |
駐車場:要問い合わせ 駐輪場:有 |
| 特徴 |
防犯カメラ,閑静な住宅街,陽当たり良好,通風良好,保証人(要),カード決済可(入居時費用) |
| 備考 |
現地待ち合わせ、物件最寄り駅までのお迎え可能。詳細はお問合せ下さいませ。取扱い物件数30,000件以上!明石市西部、加古川市、高砂市、加古郡、姫路市東部、小野市、三木市、加東市でのお部屋探しはピタットハウス加古川店・東加古川店へお任せ下さい!敷金礼金お家賃のご相談もお気軽に。初期費用クレジットカード決済対応可。 |