物件所在地 |
兵庫県加古川市平岡町新在家1001-1  |
交通機関 |
東海道・山陽本線 東加古川駅 徒歩11分 山陽電鉄本線 別府(兵庫)駅 徒歩35分 加古川線 日岡駅 徒歩49分 |
築年数 |
2023年8月 |
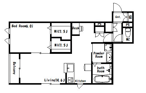
間取り詳細 |
LDK(14.6畳) 洋室(6畳) |
建物構造 |
鉄骨 |
所在階/階数 |
2/2 |
部屋向き |
南東 |
入居時期 |
期日指定 2025年11月中旬 |
入居条件 |
ペット(不可),事務所(不可),楽器等の使用(不可),子供(可),友人同士(不可) |
保証会社 |
必須 【ACS】初回:賃料総額の50% 更新料(2年更新):20,000円 |
周辺施設 |
スーパー:イオン 加古川店 438m コンビニ:セブンイレブン 加古川平岡新在家店 255m 総合病院:東加古川病院 727m
|
設備 |
宅配BOX,システムキッチン,対面式キッチン,3口以上コンロ,IHクッキングヒーター,グリル,バス・トイレ別,追い焚き風呂,温水洗浄便座,洗面所独立,シャワー付洗面台,エアコン,エアコン2台,ネット使用料不要,TVインターホン,ガス給湯,太陽光発電システム,シャッター,複層ガラス,室内洗濯機置場,ウォークインクローゼット,ウォークインクローゼット2ヶ所,シューズボックス,収納有,ガス(都市ガス),下水(公共下水),水道(公営),電気 |
部屋外設備 |
バルコニー |
駐車場 |
駐車場:有(敷地内) 6600円/月~ 駐輪場:有 |
特徴 |
耐震構造,耐火構造,駅まで平坦,最上階,上階無し,2F以上,オートロック,角住戸,陽当たり良好,保証人(不要),カード決済可(入居時費用) |
備考 |
|